寻找开冲压模具厂商,目前手上有3套模具要开的
2023-02-02 本站作者 【 字体:大 中 小 】
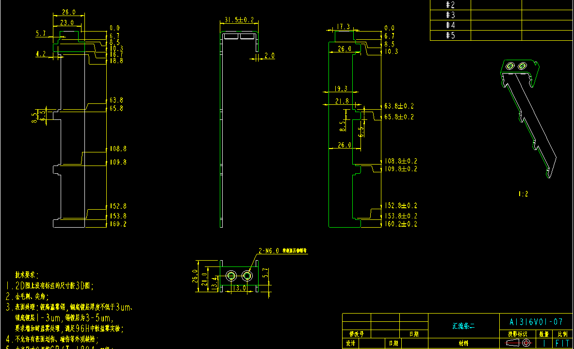
寻找开冲压模具厂商,目前手上有3套模具要开的,后续还会有,可长期配合做,只开模,我们自己做货,如图规格,M465的能开连续模最好,两套1316的开落料,工厂在东莞黄江,近点最好,远点也可以接受!

猜你喜欢
寻求东莞津上走心机,205,206机台的加工厂,300套
2021-10-14
778
778
寻求横沥高光的加工厂,量一千件,材质是65Mn,包工包料
2021-08-09
1043
1043
寻求长安附近做偏心轴的加工厂,目前每批几百件
2021-08-17
809
809
寻求可以做水槽的加工厂,打样一件,后续大概40多件
2021-10-08
745
745
寻求江苏一带可以接整套模具加工厂,厂家必须有实力
2021-07-08
733
733
寻求东莞附近CNC加工厂,量还可以,要求厂家至少有20台设备以上的
2021-08-26
999
999
寻求五金加工厂,量每月一万套/一套两件
2021-09-30
1037
1037
寻求虎门北栅附近电脑锣或者钻孔机加工厂,目前这一批有一千多件
2021-09-17
655
655
寻求专业做铆钉的加工厂,实单,量是上亿件的
2021-08-24
1010
1010
寻求东莞附近走心机加工厂,一款工件200万件起步,一共有六款工件
2021-08-30
964
964 